00件
最近見た物件
00件
検討リスト
福岡の賃貸|プライスホーム > (賃貸)路線・駅から探す > 西日本鉄道西鉄大牟田線 > 筑紫駅 > リテラス筑紫 ★プライスホームならHPに全物件の初期費用掲載中です!★ > 101
*過去情報。こちらは現在満室です。初期費用を是非ご参考にされて下さい*
■初期費用はこちら■

| 所在地 | 福岡県筑紫野市美咲8-7 | ||
|---|---|---|---|
| 交通 | |||
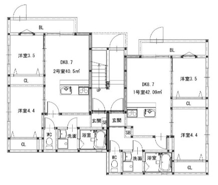
| 間取り/詳細 |
2DK DK 8.7帖/洋室 4.4帖/洋室 3.5帖 |
面積/バルコニー面積 | 42.09㎡/- |
| 賃料 | 7.5万円 | 管理費・共益費 | 3,000円 |
| 敷金/礼金/保証金 | 0ヶ月/1ヶ月/- | 償却/敷引 | -/- |
| 更新料 | 2.2万円 | 敷金積み増し | - |
| 権利金/雑費 | -/- | 駐車場/月額料金 | 空無/6,600円 |
| 保険加入/料金 | 有/20,000円 | 保険名/保険期間 | 住宅総合保険/2年 |
| 保証人代行義務 | 必加入 | 保証会社 | ジェイリース |
| 保証会社詳細 | - | 向き | - |
| 築年月(築年数) | 2025年 1月 (新築) | 契約期間 | 2年 |
| 種別/構造 | アパート/木造 | 部屋/所在階/階建 | 101/ 1階/ 3階建 |
| 総戸数 | - | 現況/入居可能日 | 完成済み/即時 |
| 特優賃 | - | 取引態様/賃貸区分 | 仲介/一般 |
| 物件番号 | 92926345 | ||
| 設備条件 |
|
||
| 備考 | ぜひ一度見ていただきたい、「リテラス筑紫」です。セキュリティ面は、TVインターホン・オートロックなどを設置しているので安全面でも優れております。お部屋選びには欠かせない内覧も、空き部屋であればスムーズです。筑紫野市エリアや西鉄大牟田線筑紫付近までのお引っ越しをご検討されているなら、お問い合わせやご連絡をお待ちしております。知識が豊富なスタッフがご対応させて頂きます。 | ||
| 条件(その他) | 契約事務手数料:1万1,000円 消毒代:1万7,600円 インターネット登録料:5,500円 室内清掃費用:7万5,000円 町費:800円(月額) 24時間サポート:660円(月額) | ||
| 取扱会社 |
|
||
| QRコード |
このQRコードを読み取ることで、スマホでも物件情報を確認できます。 |
||
※地図上に表示される物件の位置は付近住所に所在することを表すものであり、実際の物件所在地とは異なる場合がございます。
筑紫野市以外の市区町村から探す